Elektrické vytápění - energeticky úsporný rodinný dům – část I.
Projekt energeticky úsporného domu s elektrickým podlahovým a stropním topným systém se ukázal jako velmi ekonomický a uživatelsky komfortní
Expert, autor a investor v jedné osobě
Cílem projektu REP-HOUSE, energeticky úsporného domu v Moravanech u Brna, který vznikal ve spolupráci autora projektu se společností Fenix Jeseník (největší tuzemský výrobce elektrických topných systémů a jeden z partnerů projektu REP-HOUSE) je dokázat možnosti současného stavebnictví v oblasti nízkoenergetické a pasivní výstavby. Autor projektu je docentem na Stavební fakultě VUT v Brně a již během doktorandského studia se zabýval problematikou úspory energie staveb a možnostmi zvyšování tepelného odporu zdících tvarovek. Témata tepelné ochrany budov a nízkoenergetických staveb na Stavební fakultě VUT Brno přednáší a tak bylo logické, že jeho vlastní rodinný dům může být malou laboratoří, kde si na vlastní kůži může své zkušenosti vyzkoušet z pozice běžného investora – tedy od projektu přes realizaci až k užití, včetně všech důsledků svých rozhodnutí. Od počátku bylo proto jeho hlavní zásadou jako autora projektu navrhnout dům s vnitřní tepelnou pohodou v zimním i letním období a současně s důrazem nejen na pořizovací náklady, ale především na co nejnižší provozní náklady.
Srovnání pořizovacích a provozních nákladů na vytápění NED a pasivních domů
Jedním z charakteristických rysů pro nízkoenergetické až pasivní domy je nízká spotřeba energie na vytápění a tento faktor přiměl i autora projektu k důkladnému rozboru, jaký vlastně zvolit nejvhodnější systém vytápění svého domu. Ani u klasických staveb nelze obecně a jednoznačně tvrdit, který způsob řešení vytápění objektu je nejvýhodnější, o to složitější je to navíc u nízkoenergetických staveb, které jsou na trhu poměrně krátkou dobu.
Prvním krokem proto bylo porovnání a vyhodnocení investičních a provozních nákladů na vytápění, ohřev TUV a spotřebu elektrické energie – a to mezi dvěma hlavními zdroji energie používanými v ČR: zemním plynem a elektřinou. Toto porovnání bylo potřeba provést z komplexního hlediska, zahrnujícího nejen náklady na vytápění, ale i na ohřev TUV a na elektřinu pro domácnost.
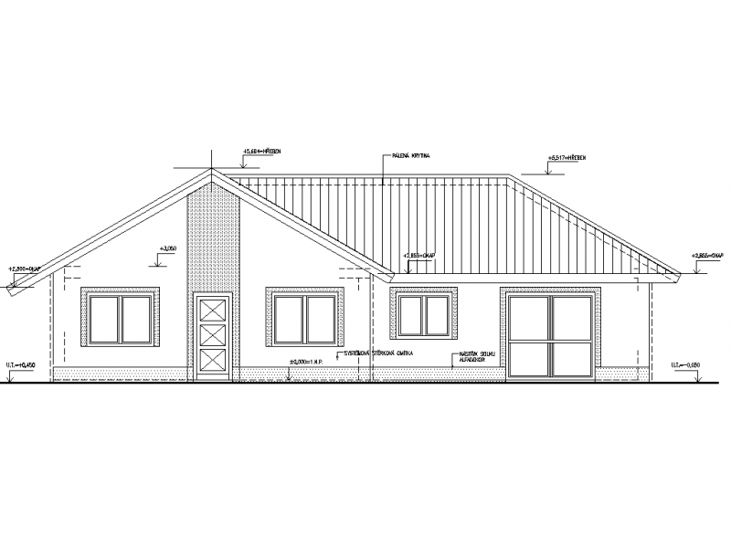
Dům REP-HOUSE v Moravanech u Brna
Dům je jednopodlažní se sedlovou střechou (atriový) s velkými okny orientovanými na jih, s celkovou podlahovou plochou 130 m² a úložným prostorem v podkroví 30 m². Obvodové zdivo bylo navrženo jako sendvič z cihlových bloků o tloušťce 300 mm, u zateplení autor navrhl fasádní polystyren EPS o tloušťce 300 mm. Projekt počítal se zateplením stropní i podlahové konstrukce, konkrétně strop PUR deskami v celkové tloušťce 300 mm, podlaha pak polystyrenem EPS 150 mm.
Pro referenční dům byla na základě projektu stanovena roční spotřeba energie na vytápění a ohřev TUV 4200 kWh a spotřeba elektrické energie na 2500 kWh. Pro výpočet provozních nákladů bylo potřeba vzít v úvahu konkrétní místní podmínky, dle kterých se stanovil vhodný tarif. (zemní plyn: Jihomoravská plynárenská a.s. – místní distributor plynu, kategorie domácnost, roční odběr se pohybuje v pásmu 1,89 až 9,45 MWh/rok, elektrická energie: E.ON Energie, a.s. – místní dodavatel, kategorie domácnost, jistič nad 3x20 A do 3x25 A včetně).
Výsledky výpočtů ukazuje tabulka.
Vytápění elektřinou se ukazuje jako výhodnější
Pro volbu elektrického vytápění domu hned v úvodu svědčí skutečnost, že u objektů, jež se svými parametry blíží k hranici NED, přestává být nejdůležitějším kriteriem cena samotné energie a mnohem významnější vliv mají pořizovací náklady, tzv. udržovací náklady a životnost topného systému a jeho komponentů. Spotřeba energie na vytápění je u těchto objektů tak malá, že například u tepelných čerpadel, přestože dokáží vyrobit teplo nejlevněji, přesahuje návratnost investice životnost zařízení.
Neopomenutelná je i skutečnost, že v nízkém tarif poskytovaném u elektrického vytápění, jsou provozovány i všechny ostatní domácí spotřebiče, zatímco u plynového vytápění jsou elektrospotřebiče provozovány v sazbě několikrát vyšší. Analýza autora ukázala, že cena za topení elektrickou energií je sice dražší než plyn, ale po přičtení nákladů za provoz ostatních elektrospotřebičů v domácnosti se provozní náklady nejen vyrovnaly, ale u elektrického vytápění dochází dokonce k úspoře ve výši cca 1 tisíc Kč (při současné ceně).
Současný trend vysoké vybavenosti moderní domácnosti elektronikou a elektrickými spotřebiči pak bude výhodu nízkého tarifu u elektrického vytápění jen umocňovat.
Výpočty potvrdily, že projekt s elektrickým topným systém bude velmi ekonomický, autor projektu navíc ocenil i variabilitu topného systému, přesnost regulace a vysoký uživatelský komfort. Tepelnou pohodu v celém domě tak budou zajišťovat výrobky z produkce FENIX Jeseník - pro REP-HOUSE bylo navrženo převážně podlahové vytápění foliemi ECOFILM, v koupelnách a kuchyni pod dlažbou pak topné rohože ECOFLOOR. Ve dvou místnostech autor navrhl stropní vytápění foliemi ECOFILM C. To vše, samozřejmě, s centrální regulací BMR.
Elektrické vytápění v energeticky úsporném rodinném domě – část II.
Elektrické vytápění v energeticky úsporném rodinném domě – část III.






